No items found.
Please enter your details below to download the plan.
Want to make changes or input your own ideas?
Talk to us today to find out how you can customise our plans.
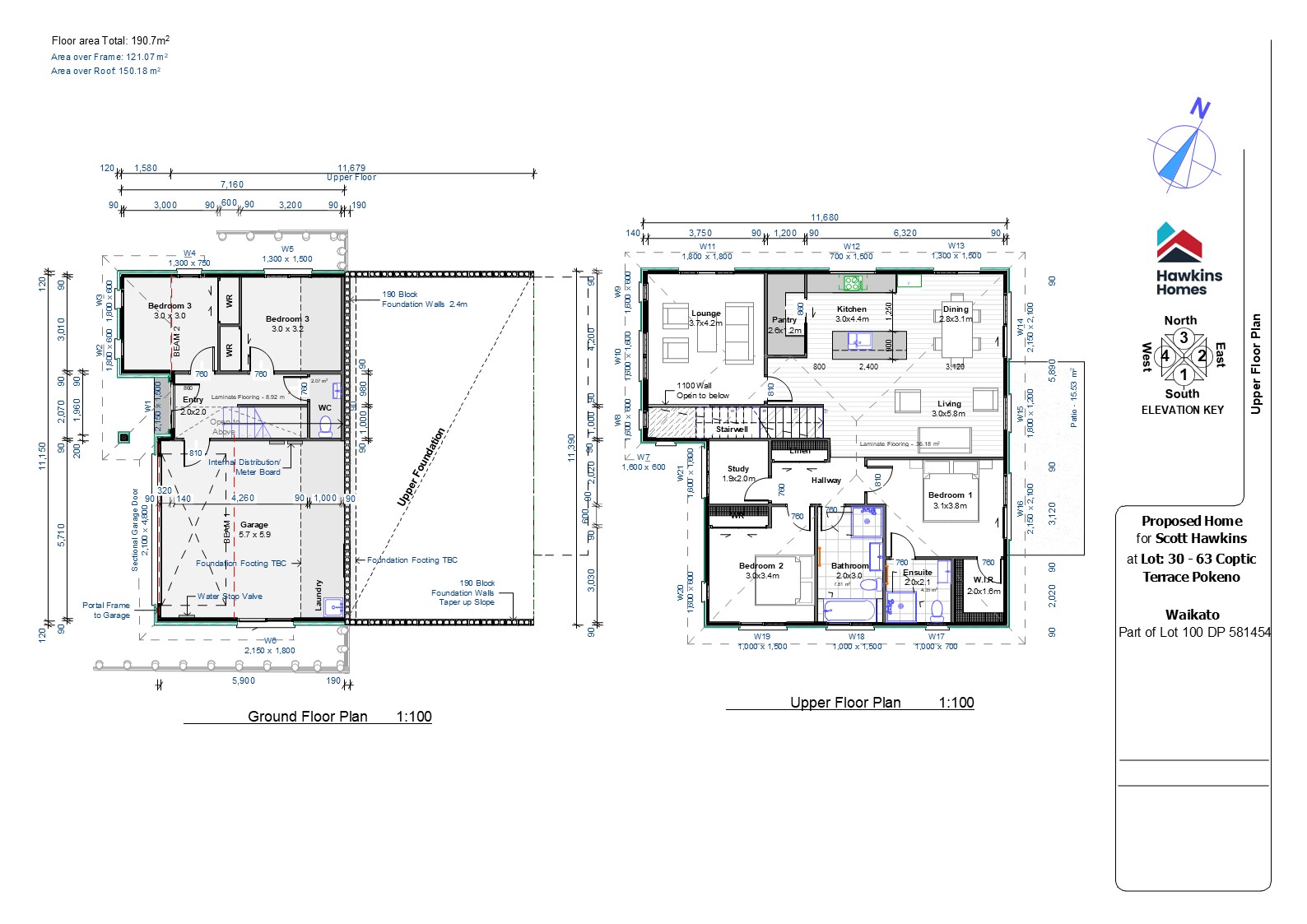
The Rory 190 is an excellent sized family home with 4 large double rooms, double living rooms and 3 Bathrooms split over 2 floors. Offering great views over Pokeno from storey living. Open plan living with designed kitchen with scullery and dining will provide you with plenty of space for all the family. Large outdoor patio for BBQs, entertaining friends and kids to play. Located at the end of Coptic Terrace CUL-DE-SAC with your own Driveway. Packed full of upgrades such as Stone Bench Tops and underfloor heating in the bathrooms. Just 6 months build time and 5% deposit, pay 95% upon completion. Call Scott on 021 520 442 to arrange a viewing.
This listing is now Under Contract
Land Area (sqm)
505
Building Area (sqm)
190
Included in this new home:
For more listings Go To: www.hawkinshomes.co.nz

DISCLAIMER: Price shown includes house and land, but is subject to terms, conditions and excludes additional siteworks/foundation costs above standard allowances unless otherwise stated. Images and photos are examples only.