No items found.
Please enter your details below to download the plan.
Want to make changes or input your own ideas?
Talk to us today to find out how you can customise our plans.
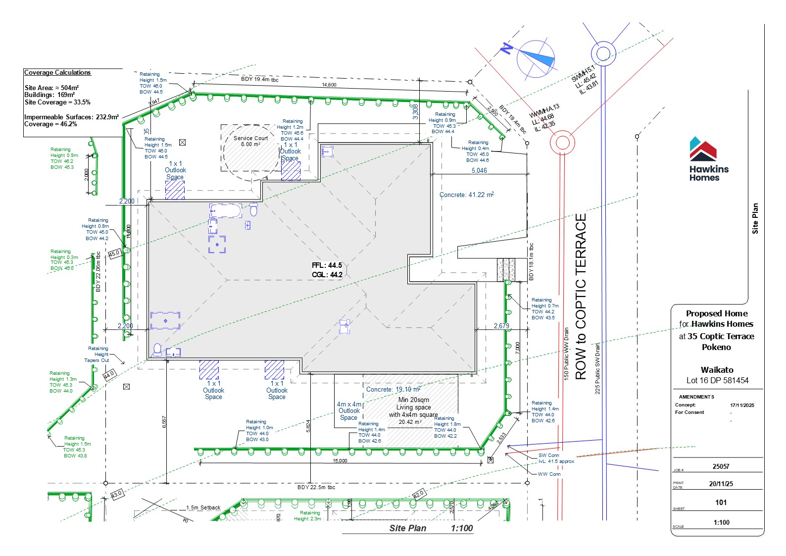
The Oscar 170 is an excellent sized family home with 4 large double rooms, large open plan living room, 2 bathrooms and a separate toilet. Offering great views over Pokeno from elevated position. Open plan living with designed kitchen with scullery and dining will provide you with plenty of space for all the family. Large outdoor patio for BBQs, entertaining friends and kids to play. Located at the end of Coptic Terrace CUL-DE-SAC with your own Driveway. Packed full of upgrades such as Stone Bench Tops and underfloor heating in the bathrooms. Just 6 months build time with 5% deposit, pay 95% upon completion. Call Scott on 021 520 442 to arrange a viewing.
Land Area (sqm)
490
Building Area (sqm)
170
Included in this new home:
170 sqm Split Level Home with 4 Double Bedrooms, 2 Bathrooms and separate toilet
For more listings Go To: www.hawkinshomes.co.nz

DISCLAIMER: Price shown includes house and land, but is subject to terms, conditions and excludes additional siteworks/foundation costs above standard allowances unless otherwise stated. Images and photos are examples only.